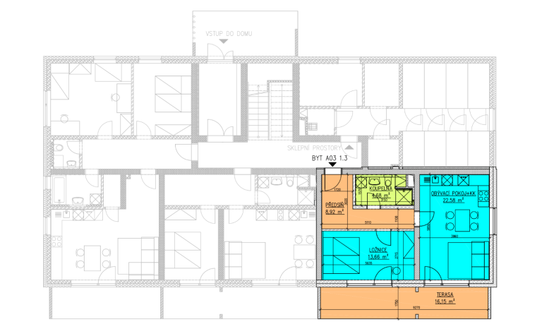
BUDOVA A
1NP - BYT A03

Volný

DISPOZICE

2+kk

PODLAHOVÁ PLOCHA

49,84 m²

PŘEDSÍŇ

8,92 m²

KOUPELNA

4,68 m²

OBÝVACÍ POKOJ + kk

22,58 m²

LOŽNICE

13,66 m²

TERASA

16,15 m²

POZEMEK

43 m²

ZAHRADNÍ SKLAD

5 m²

PARKOVACÍ STÁNÍ

ANO – 1x

4.338.155,- Kč cena s DPH

STANDARDY

Technologické řešení:

Rekuperace: Každý byt je vybaven moderní rekuperační jednotkou, která zajišťuje čerstvý vzduch, filtraci nečistot a úsporu energie.

Vytápění: Podlahové vytápění ve všech místnostech je zajištěno tepelnými čerpadly vzduch-voda, které garantují nízké náklady na provoz a šetrnost k životnímu prostředí.

Předokenní žaluzie: Zabraňují přehřívání bytu a soukromí.

Co můžete očekávat v každém bytě?

Konstrukce: Nízkoenergetické zdivo splňující všechny aktuální normy.

Větrání a vytápění: Decentrální rekuperace a podlahové vytápění zajišťované tepelným čerpadlem.

Podlahy: Plovoucí podlahy a keramická dlažba.

Koupelny: Moderní obklady, sanita a trubkové otopné žebříky s elektrickým dohřevem.

Bezpečnost: Kvalitní vstupní dveře a odpovídající protihluková izolace.

„Konkrétní výběr dekorů bude upřesněn“

Způsob prodeje

Při projevení zájmu o koupi bytu se podepisuje Smlouva o smlouvě budoucí kupní, na základě které se skládá 20% z kupní ceny bytu.
Následně se dle prostavěnosti platí následující platby:

30% po dokončení hrubé stavby

40% po dokončení omítek, obkladů a dlažeb

10% po kolaudaci na základě podpisu Kupní smlouvy.

    Kontaktní osoba

    PRODEJ NEMOVITOSTÍ

    Jiří Kaňa
    GATE ESTATE s.r.o.
    +420 733 737 617
    [email protected]

    projektový

    Developer


    StaniOn s.r.o.

     

     

    DOKUMENTY KE STAŽENÍ