






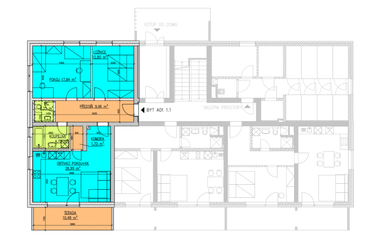
DISPOZICE
3+kk
PODLAHOVÁ PLOCHA
76,32 m²
PŘEDSÍŇ
9,96 m²
KOMORA
1,70 m²
KOUPELNA
4,78 m²
TOALETA
2,25 m²
OBÝVACÍ POKOJ + kk
26,99 m²
LOŽNICE
12,80 m²
POKOJ
17,84 m²
TERASA
10,48 m²
POZEMEK
26 m²
ZAHRADNÍ SKLAD
5 m²
PARKOVACÍ STÁNÍ
ANO – 1x
Rekuperace: Každý byt je vybaven moderní rekuperační jednotkou, která zajišťuje čerstvý vzduch, filtraci nečistot a úsporu energie.
Vytápění: Podlahové vytápění ve všech místnostech je zajištěno tepelnými čerpadly vzduch-voda, které garantují nízké náklady na provoz a šetrnost k životnímu prostředí.
Předokenní žaluzie: Zabraňují přehřívání bytu a soukromí.
Konstrukce: Nízkoenergetické zdivo splňující všechny aktuální normy.
Větrání a vytápění: Decentrální rekuperace a podlahové vytápění zajišťované tepelným čerpadlem.
Podlahy: Plovoucí podlahy a keramická dlažba.
Koupelny: Moderní obklady, sanita a trubkové otopné žebříky s elektrickým dohřevem.
Bezpečnost: Kvalitní vstupní dveře a odpovídající protihluková izolace.
„Konkrétní výběr dekorů bude upřesněn“
30% po dokončení hrubé stavby
40% po dokončení omítek, obkladů a dlažeb
10% po kolaudaci na základě podpisu Kupní smlouvy.
StaniOn s.r.o.
Zásady ochrany osobních údajů – GDPR | Zásady cookies (EU)
© 2025 GATE ESTATE s.r.o.